Гармония №436

Цена строительства от 3 416 000 ₽* * Стоимость не является окончательной
Заявка на консультацию
  • Общая площадь 126 м2
  • Длина 9 м
  • Ширина 7 м
  • Материал стен Каркасно-панельные
  • Количество этажей 2
  • Подвал Нет
  • Мансарда без мансарды
  • Гараж Нет
  • Терраса Да
  • Проживание Круглогодичное
  • Количество комнат 6
  • Количество спален 4
  • Количество санузлов 2
  • Вид проекта дом
  • Застройщик МАЛОЭТАЖНЫЕ ДОМА
  • Архитектурный стиль Классический
  • Отделка фасада Штукатурка
  • Крыша Двускатная
  • Можно купить домокомплект Нет
  • Модульный тип строения Нет
Планировки
Описание проекта

Гармония – это отличный двухэтажный дом из СИП панелей, который идеально подойдет в качестве гостевого летнего домика или дачи. Проект имеет жилую площадь почти 80 м2, 4 спальни, 2 санузла и просторную кухню-гостиную.

На летний формат здесь намекает отсутствие тамбура, большие балкон и терраса, много окон. Впрочем, планировка универсальна и можно без проблем превратить холл-прихожую в тамбур. Все что для этого нужно – установить дополнительную стену и дверь сразу за входом в техническое помещение.

Внутренняя планировка проста и удобна. Сразу после входа просторных холл на 10,28 м2, из которого можно попасть в техническое помещение (5,04 м2), санузел (3,76 м2), спальню (7,62 м2) и кухню-гостиную. В холле также расположена лестница на второй этаж. Отметим тот факт, что вход в спальню расположен возле лестницы, что и позволяет легко обустроить тамбур в доме.

Кухня-гостиная имеет площадь более 20 м2 и здесь сразу 4 больших окна и стеклянная дверь, которая выходит на своеобразное крыльцо. Такое расположение входов не типично для наших широт. Обычно из гостиной есть выход на террасу, а в «Гармонии» терраса расположена у основного входа в дом, а из гостиной можно выйти на крыльцо.

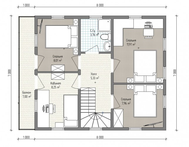
Второй этаж имеет классическую планировку – холл (5,33 м2), санузел (3,76 м2) и 4 комнаты. Три спальни (8,01 м2, 7,96 м2 и 11,91 м2) и кабинет площадью 8,25 м2. Из кабинета и одной из спален есть выход на балкон.

Отметим также, что техническое помещение, кухня и два санузла расположены по соседству, что сокращает длину коммуникаций до минимума.

Выбор местоположения

Задать вопрос / написать нам

E-mail: domgis@mail.ru

Мы свяжемся с Вами в течение дня.

Тех. поддержка
Предмет обращения:
Тукущая страница

Мы свяжемся с Вами в течение дня.

Уведомление
Предмет обращения:
Тукущая страница
Обратный звонок
Обратный звонок
Выберите ваш город
Пожаловаться

Объявление опубликовано.
Изменения сохранены

Период публикации - бессрочный, при условии подтверждения актуальности каждые 50 дней. Уведомления будут отправляться на Вашу электронную почту.

Выберите причину снятия с публикации

Снятые с публикации объявления не участвуют в поиске и недоступны для подробного просмотра.

Для повторной публикации нажмите «Вернуть в публикацию»