СИП дома в стиле барнхаус можно охарактеризовать словами «просто» и «стильно». В проекте «Рейн» нет каких-то особых архитектурных изысков. Прямоугольный дом, двускатная крыша, никаких выступающих деталей. И можно было бы сказать, что это обычный дом из СИП панелей площадью чуть меньше 100 м2, но вы присмотритесь внимательней.
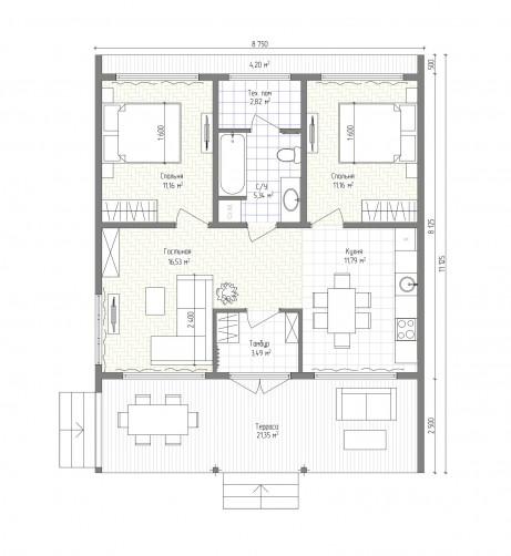
Вход в дом через стильную террасу, причем посетитель попадает сразу к обеденному столу, который разделяет зону гостиной и кухни. Рядом со входом два панорамных окна и еще одно в зоне гостиной. За кухней-гостиной небольшой холл, из которого можно попасть в санузел и две большие спальни по 11,21 м2. В спальнях также панорамные окна и большое окно под потолком в санузле. Вот и получается, что дом простой, стильный, светлый и удобный.
Выбор местоположения
Мы свяжемся с Вами в течение дня.