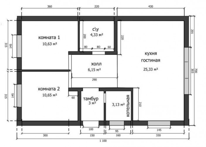
Этот уютный дом площадью 77 м2 – идеальное место для комфортной жизни. Две светлые комнаты по 10 м2 каждая предоставляют уединенное пространство для отдыха и работы. Сердцем дома является просторная кухня-гостиная с французским окном площадью 25 м2, где можно собираться всей семьей или принимать гостей. Здесь достаточно места для приготовления пищи, обеденной зоны и зоны отдыха.
Просторный холл площадью 6 м2 обеспечивает плавный переход между комнатами и добавляет ощущение простора. Раздельный санузел и котельная обеспечивают комфорт и функциональность.
Дом спроектирован с учетом современных требований к комфорту и энергоэффективности, что делает его идеальным выбором для тех, кто ценит уют и практичность.
Выбор местоположения
Мы свяжемся с Вами в течение дня.